フレグランス京町彦根市京町 |
|

| 所在地 | 彦根市京町 |
|---|---|
| 交通 | JR琵琶湖線彦根駅まで徒歩約7分 |
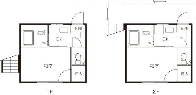
| 建物構造 | 軽量鉄骨造・2階建・10戸1棟 | ||||
|---|---|---|---|---|---|
| 築年月 | 1990年03月 | 面積 | 18㎡(5.4坪) | 用途地域 | 商業 |
| 敷金 | 100,000円 | 水道 | 公営 | 給湯 | ガス給湯器 |
|---|---|---|---|---|---|
| 礼金 | なし | ガス | 都市ガス | 冷暖器 | 冷暖房 |
| 共益費 | 家賃に含む | 雑排水 | 公共下水 | ||
| 駐車場 | なし | 汚水 | 公共下水 | ||
| 更新料 | 賃料の1ヶ月分 / 2年毎 | ||||
| 仲介手数料 | なし | ||||
| 備考 |
自治会費毎月200円要。火災保険加入要。鍵交換代15,750円。 | ||||

